HOME
ABOUT
PROJECTS
CONTACT

HELEN VAUGHAN ARCHITECT



m 0405 812 556


HIGHGATE

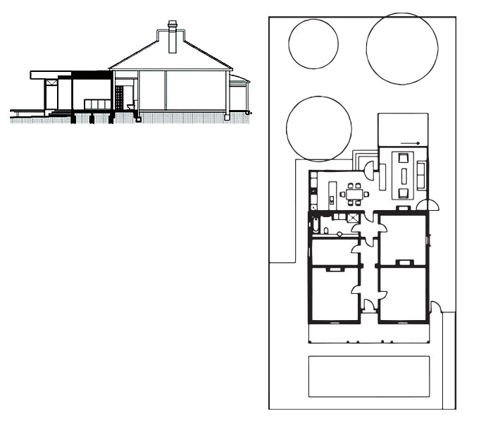
The project involved a contemporary extension to a circa 1920 symmetrical cottage, comprising new bathroom/laundry, and open plan kitchen/dining/living room with deck. The extension has large windows and doors, below cantilevered canopies and eaves, thus capitalising on the northern aspect and providing an intimate connection to the garden, together with natural light and ventilation.

Site features have been carefully exploited to ensure that the addition is spacious and open, with a minimal loss of garden and existing trees. The original floor level is extended to the rear, allowing the extension and deck to float above the garden.

The extension is of light weight construction with strip footing, allowing a cost-effective timber floor and deck whilst utilising the site’s subtle slope towards the rear. The new external walls follow the height and line of the existing building, abutting with a shadow line joint. The simple geometric planes seek to compliment, not replicate, the original building.

back arrow
highgate house section and plan
next arrow
HOME
ABOUT
PROJECTS
CONTACT